上海吉邁閥門制造有限公司主要生產≦Q41F法蘭式球閥≧也是國內球閥生產商之一。公司創建以來,始終致力于閥門的科技管理和不斷創新,使企業走上了良性循環的規模化經營之路,擁有了一支專業的閥門設計和技術研發隊伍,形成了一套完整的生產管理、質量管理、營銷管理和服務管理體系。
■ Q41F法蘭式鑄鋼球閥產品概述:
Q41F法蘭式鑄鋼球閥適用介質:水、氣、油品、天然氣和酸碳腐蝕性介質適用溫度:-196-350℃ 驅動方式:手動、氣動、電動、波動等 公稱通徑:DN15-250mm 1/2″-10″。
■ Q41F法蘭式鑄鋼球閥結構特點:
1、流體阻力小、球閥是所有閥類中流體阻力最小的一種,即使是縮徑球閥,其流體阻力也相當小。
2、止推軸承減小閥桿磨擦力矩,可使閥桿長期操作平穩靈活。
3、閥座密封性能好,采用聚四氟乙烯等彈性材料制成的密封圈,結構易于密封,而且球閥的閥封能力隨著介質壓力的增高而增大。
4、閥桿密封可靠,由于閥桿只作彷轉動運而不做升降運動,閥桿的填料密封不易破壞,且密封能力隨著介質的壓力增高而增大。
5、由于聚四氟乙烯等材料具有良好的自潤滑性,與球閥的磨擦損失小,故球閥的使用壽命長。
6、下裝式閥桿和閥桿頭部凸階防止閥桿噴出,如火災造成閥桿密封破壞,凸階與閥體間還可形成金屬接觸,確保閥桿密封。
7、 防靜電功能:在球體、閥桿、閥體之間設置彈簧,能將開關過程產生的靜電導出。
■ Q41F法蘭式鑄鋼球閥執行機構:
球閥采用新型系列GT型氣動執行器,有雙作用式和單作用式(彈簧復位),齒輪齒條傳動,安全可靠;大口徑閥門采用系列AW型氣動執行器拔叉式傳動,結構合理,輸出扭矩大,有雙作用式和單作用式。
1、齒輪式雙活塞,輸出力矩大,體積小。
2、氣缸選用鋁金材料,重量輕、外形美觀。
3、可在頂部、底部安裝手動操作機構。
4、齒條式連接可調節開啟角度、額定流量。
5、執行器可選帶電訊號反饋指示及各類附件以實現自動化操作。
6、IS05211標準連接為產品的安裝更換提供了方便。
7、兩端調的節螺釘可使標準產品在0°和90°有±4°的可調范圍。確保與閥門的同步精度。
■ Q41F法蘭式鑄鋼球閥附件的選項:
根據不同控制和要求可選擇下列附件:
切斷型附件:單電控電磁閥、雙電控電磁閥、限位開關回訊器。
調節型附件:電氣定位器、氣動定位器、電氣轉換器。
氣源處理附件:空氣過濾減壓閥、氣源處理三聯件。
■ Q41F法蘭式鑄鋼球閥執行標準:
1、設計與制造:GB12237-89、API608、API 6D、JPI 7S-48、BS5351、DIN3357。
2、法蘭尺寸:JB/T74~90(JB74~90)、GB9112~9131、HGJ44~76、SH3406、ANSI B16.5、JIS B2212~2214、NF E29-211、DIN2543。
3、結構長度:GB12221-89、ANSI B16.10、JIS B2002、NF E29-305、DIN3202。
■ Q41F法蘭式鑄鋼球閥性能規范:
|
公稱通徑mm
|
DN15-DN300
|
|
材料代號
|
C
|
P
|
R
|
|
主要零件
|
閥 體
|
WCB
|
ZG1Cr18Ni9Ti
|
ZG1Cr18Ni12Mo2Ti
|
|
球 體
|
2Cr13
|
1Cr18Ni9Ti
|
1Cr18Ni12MoTi
|
|
閥 桿
|
2Cr13
|
1Cr18Ni9Ti
|
1Cr18Ni12MoTi
|
|
密封圈
|
增強聚四氟乙烯 對位聚苯
|
|
填 料
|
聚四氟乙烯 柔性石墨
|
|
適用工況
|
適用介質
|
蒸汽、水、油品
|
硝酸類
|
醋酸類
|
|
適用溫度
|
-28℃ - 300℃
|
|
執行器
|
型 號
|
DA/SR系列、GTD/GTE系列、QGSY系列等
|
|
氣源壓力
|
0.4-0.7MPa
|
|
試驗壓力
(Mpa)
|
公稱壓力(Mpa)
|
壓力級(class)
|
JIS(Mpa)
|
|
1.6
|
2.5
|
4.0
|
6.4
|
10.0
|
150
|
300
|
600
|
10K
|
20K
|
|
強度試驗
|
2.4
|
3.8
|
6.0
|
9.6
|
15.0
|
3.1
|
7.8
|
15.3
|
2.4
|
3.8
|
|
密封試驗
|
1.8
|
2.8
|
4.4
|
7.0
|
11.0
|
2.2
|
5.6
|
11.2
|
1.5
|
2.8
|
|
氣密試驗
|
0.5~0.7
|
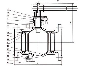
■ Q41F法蘭式鑄鋼球閥主要零件材料:
|
序號
No.
|
材料標準
|
材料牌號
|
序號
No.
|
材料標準
|
材料牌號
|
|
碳鋼
|
不銹鋼
|
碳鋼
|
不銹鋼
|
|
零件名稱
|
GB
|
ASTM
|
GB
|
ASTM
|
零件名稱
|
GB
|
ASTM
|
GB
|
ASTM
|
|
01
|
閥體
|
WCB
|
A216-WCB
|
ZG1Cr18Ni9Ti
ZG1Cr18Ni12Mo2Ti
|
CF8/CF8M/
CF3/CF3M
|
10
|
閥座密封圈
|
石墨
|
|
02
|
閥蓋
|
WCB
|
A216-WCB
|
ZG1Cr18Ni9Ti
ZG1Cr18Ni12Mo2Ti
|
CF8/CF8M/
CF3/CF3M
|
11
|
閥桿
|
2Cr13
|
A276-410
|
1Cr18Ni9Ti
1Cr18Ni12Mo2Ti
|
F304/F316/
F304L/F316L
|
|
03
|
雙頭螺柱
|
35CrMoA
|
A193-B7
|
1Cr17Ni2
|
A193-B8M
|
12
|
止推軸承
|
金屬夾PTEE
|
|
04
|
螺母
|
45
|
A194-2H
|
0Cr18Ni
|
A194-8M
|
13
|
閥桿填料
|
石墨
|
|
05
|
墊圈
|
金屬夾石墨
|
14
|
填料壓環
|
2Cr13
|
A276-410
|
1Cr18Ni9Ti
1Cr18Ni12Mo2Ti
|
F304/F316/
F304L/F316L
|
|
06
|
球體
|
2Cr13滲氮
|
A276-410滲氮
|
1Cr18Ni9Ti
1Cr18Ni12Mo2T
滲氮
|
F304/F316/
F304L/F316L
滲氮
|
15
|
填料壓蓋
|
WCB
|
A216-WCB
|
ZG1Cr18Ni9Ti
ZG1Cr18Ni12Mo2Ti
|
CF8/CF8M/
CF3/CF3M
|
|
07
|
閥座
|
2Cr13滲氮
|
A276-410滲氮
|
1Cr18Ni9Ti
1Cr18Ni12Mo2T
滲氮
|
F304/F316/
F304L/F316L
滲氮
|
16
|
螺釘
|
35CrMoA
|
A193-B7
|
1Cr17Ni2
|
A193-B8M
|
|
08
|
閥座支承圈
|
2Cr13
|
A276-410
|
1Cr18Ni9Ti
1Cr18Ni12Mo2T
|
F304/F316/
F304L/F316L
|
17
|
定位板
|
2Cr13
|
A276-410
|
1Cr18Ni9Ti
|
304
|
|
09
|
閥座彈簧
|
17-7PH
|
17-7PH
|
17-7PH
|
17-7PH
|
|
|
|
|
|
|
■ Q41F法蘭式鑄鋼球閥主要外形圖:

■ Q41F法蘭式鑄鋼球閥主要連接尺寸及重量:
PN1.6 MPa主要連接尺寸及重量:
|
公稱通徑DN
|
15
|
20
|
25
|
32
|
40
|
50
|
65
|
80
|
100
|
125
|
150
|
200
|
|
L
|
130
|
140
|
150
|
165
|
180
|
200
|
220
|
250
|
280
|
320
|
360
|
400
|
|
H
|
59
|
63
|
75
|
105
|
95
|
107
|
142
|
152
|
178
|
252
|
272
|
342
|
|
W
|
130
|
130
|
160
|
180
|
230
|
230
|
400
|
400
|
650
|
1050
|
1050
|
1410
|
|
Wt(㎏)
|
2.5
|
3
|
5
|
6
|
7
|
10
|
15
|
19
|
33
|
58
|
93
|
160
|
PN2.5 MPa主要連接尺寸及重量:
|
公稱通徑DN
|
15
|
20
|
25
|
32
|
40
|
50
|
65
|
80
|
100
|
125
|
150
|
200
|
|
L
|
130
|
140
|
150
|
165
|
180
|
200
|
220
|
250
|
280
|
320
|
360
|
400
|
|
H
|
59
|
63
|
75
|
105
|
95
|
107
|
142
|
152
|
178
|
252
|
272
|
342
|
|
W
|
130
|
130
|
160
|
180
|
230
|
230
|
400
|
400
|
650
|
1050
|
1050
|
1410
|
|
Wt(㎏)
|
2.5
|
3
|
5
|
6.5
|
9
|
12
|
20
|
25
|
44
|
75
|
105
|
200
|
PN4.0 MPa主要連接尺寸及重量:
|
公稱通徑DN
|
15
|
20
|
25
|
32
|
40
|
50
|
65
|
80
|
100
|
125
|
150
|
200
|
|
L
|
130
|
140
|
150
|
180
|
200
|
220
|
250
|
280
|
320
|
400
|
400
|
400
|
|
H
|
59
|
63
|
75
|
85
|
95
|
107
|
142
|
152
|
178
|
252
|
272
|
342
|
|
W
|
130
|
130
|
160
|
230
|
230
|
400
|
400
|
700
|
1100
|
1100
|
1500
|
1500
|
|
Wt(㎏)
|
3
|
4
|
5
|
7
|
9
|
12
|
18
|
28
|
46
|
75
|
106
|
190
|
PN6.4 MPa主要連接尺寸及重量:
|
公稱通徑DN
|
15
|
20
|
25
|
32
|
40
|
50
|
65
|
80
|
100
|
125
|
150
|
200
|
|
L
|
165
|
190
|
216
|
229
|
241
|
292
|
330
|
356
|
432
|
508
|
559
|
660
|
|
H
|
59
|
63
|
75
|
97
|
107
|
142
|
152
|
178
|
252
|
272
|
305
|
398
|
|
W
|
130
|
130
|
160
|
230
|
230
|
400
|
400
|
700
|
1100
|
1100
|
1500
|
1800
|
|
Wt(㎏)
|
6.5
|
7
|
8
|
12
|
14
|
18
|
28
|
40
|
65
|
98
|
140
|
250
|
PN10.0 MPa主要連接尺寸及重量:
|
公稱通徑DN
|
15
|
20
|
25
|
32
|
40
|
50
|
65
|
80
|
100
|
125
|
150
|
200
|
|
L
|
165
|
190
|
216
|
229
|
241
|
292
|
330
|
356
|
432
|
508
|
559
|
660
|
|
H
|
59
|
63
|
75
|
97
|
107
|
142
|
152
|
178
|
252
|
272
|
305
|
398
|
|
W
|
130
|
130
|
160
|
230
|
230
|
400
|
400
|
700
|
1100
|
1100
|
1500
|
1800
|
|
Wt(㎏)
|
6.5
|
7
|
10
|
15
|
18
|
25
|
32
|
46
|
75
|
|
|
|
專業制造、專業服務、為您創造更多價值!
吉邁閥門致力于滿足用戶的期望,不斷提升服務質量,精益求精,“真誠的服務”是永恒的主題,嚴格按照ISO9001-2000質量體系認證要求,質量嚴格把關,責任到人,確保生產、銷售、服務的一條龍運行.加強與用戶溝通,竭誠為廣大新老客戶提供優質的產品,至善至美服務.
特此我廠做出如下承諾:
產品標準:
產品嚴格按中國GB、HG標準和美國API等標準設計、制造、驗收。密封面硬度達到國家規定要求,寬度超過國家標準.
售前服務:
產品介紹,技術交流,非標產品設計,疑難解答.
售中服務:
1.守信合同,保證及時供貨,隨時保持與客戶聯系.
2.對特殊或復雜的產品,我廠安排介紹人員對用戶進行產品使用、故障排除、調試及維修進行培訓和指導.
售后服務:
- 產品質保期為自簽訂合同生效起12個月,實行“三包”服務,(包退、包換、包修).
- 產品在使用中我廠定期組織技術、質檢人員進行訪問,征詢用戶對產品質量、使用狀況、改進意見等各方面的反饋.
- 對用戶投訴質量問題,快速做出反應,售后服務人員在24-36小時(省外48小時)趕赴現場.
- 對售后服務,要求用戶填寫服務后的質量反饋信息表,并做出鑒定意見,一邊提供的服務質量.